- Project Runeberg -  Nordisk tidskrift för bok- och biblioteksväsen / Årgång I. 1914 /
25

(1914-1935)
Table of Contents / Innehåll | << Previous | Next >>
  Project Runeberg | Catalog | Recent Changes | Donate | Comments? |   

Full resolution (TIFF) - On this page / på denna sida - Det nye Universitetsbibliotek i Kristiania av Oluf Kolsrud

scanned image

<< prev. page << föreg. sida <<     >> nästa sida >> next page >>


Below is the raw OCR text from the above scanned image. Do you see an error? Proofread the page now!
Här nedan syns maskintolkade texten från faksimilbilden ovan. Ser du något fel? Korrekturläs sidan nu!

This page has been proofread at least once. (diff) (history)
Denna sida har korrekturlästs minst en gång. (skillnad) (historik)

anna i same etagen. Alle administrationsrom og publikumrom ligg paa same
plan, paa ubrotne golv, og daa lesesalen skulde hava overljos likesom i det
gamle huset, vart alle desse rom lagde i 2dre høgdi, svarande til 4de og 5te
(midt-romi til 4de— 6te) boketage. Denne centralisation er til umaateleg stor
lette for arbeidet, og publikum skal ikkje klaga, um dei lyt stiga upp; det
er meir um aa gjera, at arbeidsvilkaari er lette for personalet[1]. Og ikkje
minst gagnlegt var det, at paa denne maaten er det vunne inn 1380 m.2 eller
eit godt norsk maal i golvplass til bokmagasin i sjølve hovudbygnaden.

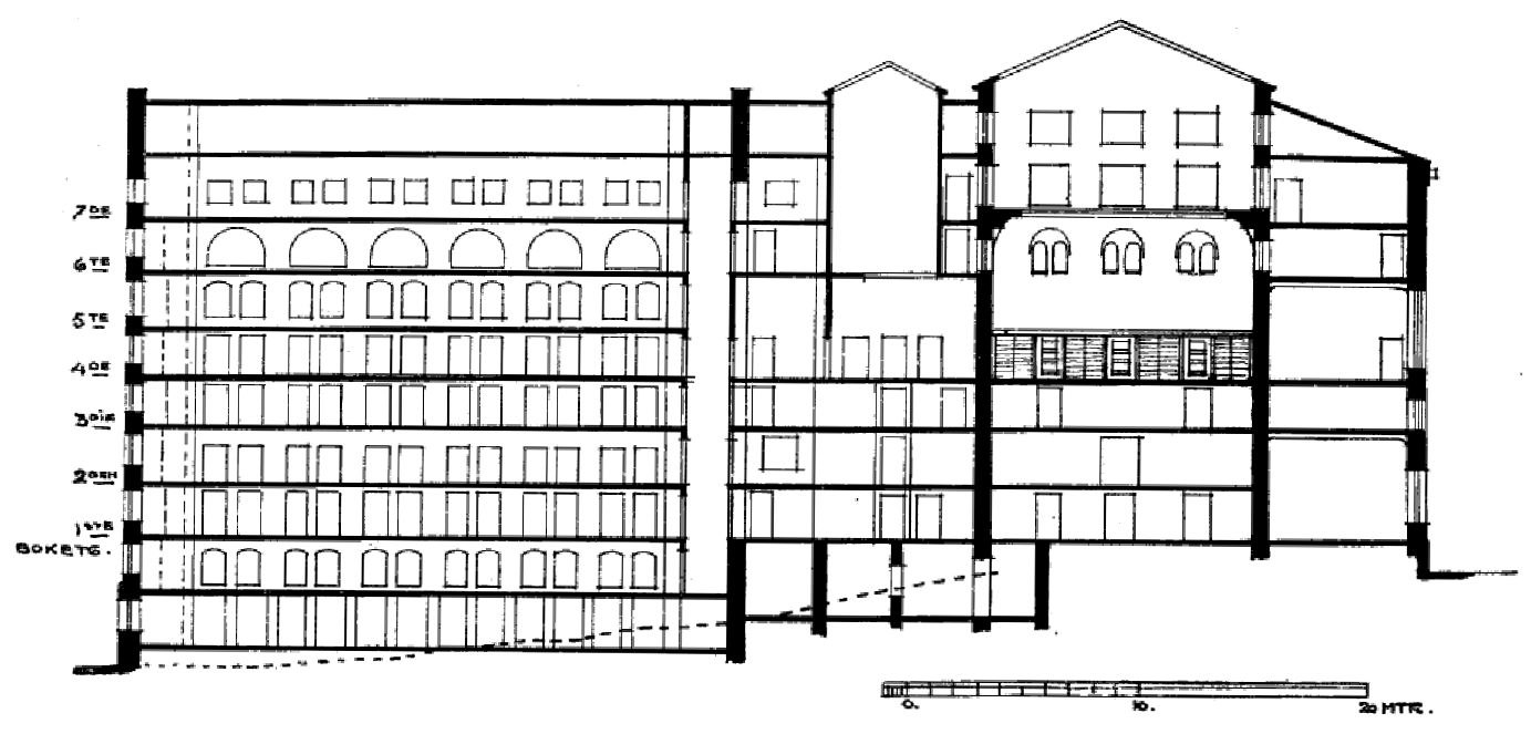
Fig. 4. Universitetsbiblioteket i Kristiania. Snitt gjenom utstellings-salen og bokmagasinet<b(den delen av huset, som no er fullførd). Teikna av H. Sinding-Larsen.
Fig. 4. Universitetsbiblioteket i Kristiania. Snitt gjenom utstellings-salen og bokmagasinet
(den delen av huset, som no er fullførd). Teikna av H. Sinding-Larsen.


Fraa Drammens vegen fører hovud-inngangen g jenom eit smalt vindfang
inn i ei romleg kvelvd hall; ei breid makleg granit-tropp gjeng i 2 laup upp
i 2dre høgdi, til forhalli med garderobe og toilett-rom for publikum. Heri-
fraa fører dubble pendel-dører i 3 leider inn i dei rom, som publikum hev
tilgjenge til: utlaanskontoret (tvihøgt) parallelt med fasaden, den store
lesesalen (trihøg) til vinstre, og utstellingssalen (trihøg) til høgre, alle med
overljos. Meir treng ikkje publikum sjaa, og lenger slepp dei ikkje inn;
personalet er i fred for utidigt renn.

Innanfyre ligg kontori og arbeidsromi aat personalet, som hev eigen
inngang fraa Observatoriegata og eigen garderobe. Den store arbeidssalen,
med 8 glasboxar aat amanuensar og assistentar, ligg like attanfyre
utlaanskontoret (med bokluke i millomveggen), og innetter til høgre i ein vinkel
rådt ut til facade-hyrna fylgjer ei suite (6) kontor for amanuensar og
biblio-tekarar, med dei tvo kontori aat chefen i midten. Alle desse rom er


[1] Personalet er lite paa dette store biblioteket. Det er overbibliotekar, 2 bibliotekarar,
10 amanuensar (tvo av deim er inspektørar), 2 assistentar, 1 hjelpe-inspektør, 1 kontorist,
1 vaktmeister, 1 vakt- og varme-meister, 1 tenår, 1 fyrbøtar.

<< prev. page << föreg. sida <<     >> nästa sida >> next page >>


Project Runeberg, Sat Dec 9 16:08:21 2023 (aronsson) (diff) (history) (download) << Previous Next >>
https://runeberg.org/bokobibl/1914/0041.html

Valid HTML 4.0! All our files are DRM-free